2d CAD floor layout plan details of residential house autocad file
Description
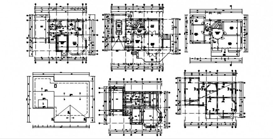
2d CAD floor layout plan details of residential house autocad file that shows work plan drawing details of house along with floor level details and room dimension details. Dimension hidden line details with room details of drawings room bedroom kitchen and dining area details also included in the drawing.
Uploaded by:
Eiz
Luna

